Аренда

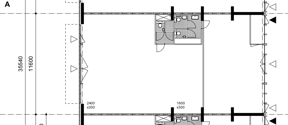
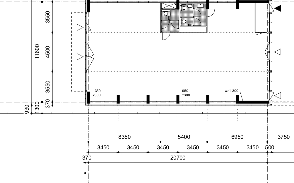
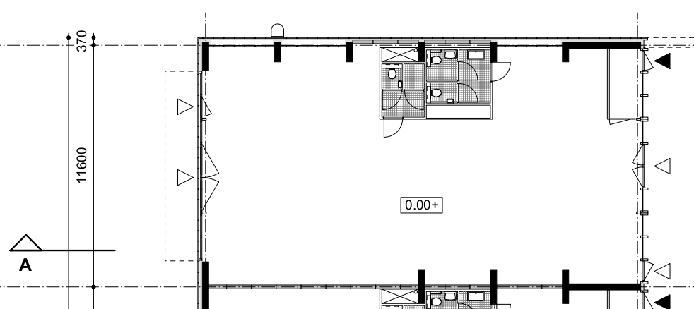
Business Hub модуль – это пространство площадью 220 м2, размером 11м на 20м и высотой 7м. Каждый модуль можно трансформировать в соответствии с вашими бизнес задачами: построить второй этаж, сделать перегородки для отдельных офисов и технических комнат.

Площадь антресольного этажа и любых других помещений регулируется индивидуально. Любое количество отдельных помещений или Open Space пространство легко создаются с помощью мобильных конструкций. Антресольный этаж надстраивается как по всему периметру, так и частично.

Планировка и строительство включены в арендную ставку, cтоимость метра зависит от требуемой площади. Возведение второго этажа и санузлов берет на себя арендодатель. Вы заезжаете в готовый офис, полностью отвечающий требованиям вашего бизнес процесса. Все детали проекта согласуются с вами заранее, имеется возможность дальнейшей модификации пространства под ваши задачи.

На видео можно посмотреть, как трансформируется Business Hub модуль - создание второго этажа и организацию рабочего пространства.

220
м2
площадь
20
м
длина
11
м
ширина
7
м
высота
Меньше затрат,
больше комфорта

Энергоэффективные решения для сокращения затрат и комфорта Вашего бизнеса

  1. Энергоэффективные решения для сокращения затрат и комфорта Вашего бизнеса
  2. Антибликовые окна 
с низкоэмисионным стеклом позволяют достичь максимального эффекта энергосбережения 
и значительно снизить энергозатраты.
  3. LED освещение позволяет снизить энергопотребление.
  4. Возможность регулирования температуры и качества воздуха с помощью систем кондиционирования и вентилирования позволяют обеспечить необходимый микроклимат внутри помещения.
  5. Автономное обеспечение и индивидуальные коммуникации (приборы учета электроэнергии, воды, канализации) позволяют соединить несколько разнозадачных помещений.
  6. Индивидуальный вход обеспечивает автономность бизнеса и круглосуточный доступ для всех сотрудников компании.
  • г. Санкт-Петербург, Ново-Никитинская улица, д. 18

    КАД - 10 мин

    АЭРОПОРТ - 40 мин

    ЗСД - 10 мин

    ЦЕНТР - 25 мин

Контакты

Оставьте заявку и мы перезвоним

Нажимая на кнопку «Отправить заявку», вы соглашаетесь с Условиями Пользовательского Соглашения